на главную карта сайта отправить эл.письмо
Адрес: 111033, Россия, г. Москва, ул. Волочаевская, д.40, стр.4
+7 (495) 363-97-51
                       
Каталог Продукции
МКЗ "Борец"

промышленное оборудование
Адрес: 111033, Россия, г. Москва
ул.Волочаевская
д.40, стр.4
Тел/Факс: +7 (495) 363-97-51
Email: info@energoprom.info

202вп 12/3 - поршневая компрессорная установка МКЗ Борец

Компрессор 202ВП-12/3

ОФОРМИТЬ ЗАКАЗ НА КОМПРЕССОР 202ВП-12/3

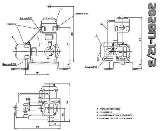
Чертеж внешнего вида 202ВП-12/3


Компрессор стационарный, поршневой, крейцкопфный, одноступенчатый, оппозитный, с водяным охлаждением, со смазкой цилиндров и сальников.

Привод осуществляется от односкоростного асинхронного электродвигателя тип АВ2-101-8, встроенного в раму компрессора.

Компрессор оборудован системой автоматической защиты и сигнализации по основным параметрам.

Компрессор 202ВП-12/3  
Технические условия ТУ 3643-002-00217780-96
Сжимаемый газ воздух
Частота вращения вала электродвигателя, об/мин 735
Объемная производительность приведенная к условиям всасывания, куб.м/мин. 12
Давление атм. абс.: Начальное атмосферное
Конечное 4,5
Температура газа начальная град. С -25...+35
Мощность на валу компрессора, кВт. 50
Расход охлаждающей воды без концевого холодильника при ее температуре на входе +25 град. С. (расч.) л./мин. 20
Количество масла, заливаемого в раму компрессора, л 35
Масса компрессора, кг 1050
Электродвигатель  
Тип АВ2-101-8
Мощность, кВт 75
Напряжение, В 380
Установка  
Масса установки в объеме поставки, кг 2280
Габаритные размеры установки, Д/Ш/В, мм 1585/1330/1575

винтовые компрессоры
Rambler's Top100 Яндекс.Метрика
 


Не дозвонились?

Оставьте Ваши контактные данные и мы перезвоним Вам в ближайшее время

Ваше имя:
Телефон:
Комментарий:

Закрыть

Отправить
ЗАКРЫТЬ