| 
Каталог Продукции МКЗ "Борец"   
        
          | Адрес: | 111033, Россия, г. Москва ул.Волочаевская
 д.40, стр.4
 |  
          | Тел/Факс: | +7 (495) 363-97-51 |  
          | Email: | info@energoprom.info |  | Компрессор 2ВМ4-27/9Поршневые компрессорные установкиМКЗ "Борец"Компрессор 2ВМ4-27/9, (2ВМ-4-27/9) предназначен для создания избыточного 
давления и подачи сжатого воздуха в качестве источника энергии 
для других процессов и применяются практически во всех 
отраслях промышленности.
 
 Структура условного 
обозначения компрессора 2ВМ4-27/9, (2ВМ-4-27/9)
 2 - 
число рядов в базе;
 В - для сжатия воздуха;
 М - 
оппозитная база;
 4 - усилие на штоке поршня, тс;
 27 - 
производительность, м3/мин;
 9 - абсолютное конечное 
давление, кгс/см2
 
 В состав компрессорной установки входят: компрессор, 
газоохладители, системы охлаждения, автоматического управления 
и защиты.
 
 Компрессор 2ВМ4-27/9, 2ВМ 4-27/9 - 
стационарный, поршневой, двухступенчатый, оппозитный, с 
водяным охлаждением, со смазкой цилиндров и сальников. 
Компрессор включает следующие основные узлы: базу, цилиндры, 
электродвигатель.
 
 База состоит из унифицированных узлов 
кривошипно-шатунного механизма (коленчатого вала, шатуна, 
крейцкопфа), рамы, блока смазки механизма движения и 
лубрикатора. Рама чугунная, литая, коробчатой формы, с 
внутренними ребрами усиления. В верхней части рамы 
предусмотрены плотно закрываемые крышками люки, обеспечивающие 
доступ к деталям механизма движения. Нижняя часть рамы служит 
резервуаром для масла. Для крепления цилиндров компрессора к 
раме имеются специальные приливы. В отверстиях поперечных 
ребер установлены крейцкопфные чугунные гильзы, служащие 
направляющими для крейцкопфов. Коленчатый вал стальной 
штампованный, с кривошипами для установки шатунов, опирается 
на роликовые подшипники. На одном его конце установлен ротор 
электродвигателя, а в закрепленном на торце вала фланце 
выполнено квадратное отверстие для проворачивания вала 
компрессора с помощью рукоятки перед запуском. На другом конце 
вала крепится шестерня для передачи вращения валу масляного 
насоса блока смазки. Крейцкопфы чугунные или алюминиевые литые 
или штампованные, изготовляются заодно с ползунами. С шатунами 
крейцкопф соединяется посредством пальцев, которые 
изготовляются из стали и при сборке запрессовываются в 
крейцкопф. Шатуны стальные, штампованные, двутаврового 
сечения. Шатун имеет кривошипную головку с отъемной крышкой и 
неразъемную крейцкопфную головку. Разъемные вкладыши 
кривошипной головки - с антифрикционным слоем из алюминиевого 
сплава. Крышка кривошипной головки шатуна соединяется со 
стержнем шатуна двумя болтами и гайками.
 
 Компрессор 
имеет цилиндры двойного действия разного диаметра. Всасывающий 
и нагнетательный клапаны закрепляются в гнездах нажимным 
стаканом и упорными болтами или нажимными шпильками с гайками. 
Все уплотнения достигаются применением паронитовых прокладок. 
Поршни - дисковые, двойного действия из чугуна, алюминия или 
стали. Поршневые кольца - чугунные.
 
 Привод 
осуществляется от двухскоростного асинхронного 
электродвигателя, встроенного в раму 
компрессора.
 
 Смазка компрессоров осуществляется двумя 
независимыми системами: низкого давления для подачи масла к 
механизму базы и высокого давления для подачи масла в цилиндр. 
В системе смазки низкого давления масло заливается в нижнюю 
часть рамы через люковую крышку. Оттуда через сетчатый фильтр 
грубой очистки шестеренчатым насосом подается в блок смазки и 
далее во внутренний канал коленчатого вала, который имеет 
подводы масла на рабочую поверхность кривошипных шеек и к 
шатунам. В системе смазки высокого давления масло заливается в 
лубрикатор, откуда плунжерным насосом подается к цилиндрам и 
равномерно распределяется по поверхности трения.
 
 Для 
смазки механизма движения могут применяться масла марок И-50А 
(ГОСТ 20799-75), МС-20 (ГОСТ 21743-76), К3-10 (ТУ 
38.401479-84), ИГП-49 (ТУ 38.101413-90); для цилиндров и 
уплотнительных устройств - масла К-12 и К-19 (ГОСТ 1861-73), 
МС-20.
 Система охлаждения - водяная, не замкнутая, с 
регулировочным вентилем. Газоохладители - цилиндрические 
кожухотрубные аппараты с продольным оребрением труб. По 
требованию заказчика компрессорная установка может быть 
изготовлена с замкнутой системой охлаждения. Наряду с 
охлаждением из сжимаемого воздуха удаляются масло и влага, для 
чего служат влагомаслоотделители. Система автоматики 
предназначена для управления работой, защиты и контроля 
параметров. Она состоит из ряда подсистем и в совокупности с 
электроприводом осуществляет аварийное прекращение работы 
компрессорной установки с остановкой двигателя: при превышении 
температуры воздуха; при падении давления масла в 
циркуляционной системе смазки механизма движения; при 
недопустимом уменьшении протока охлаждающей воды; при 
превышении выше допустимого давления нагнетания; при КЗ и 
повреждениях в системе электропривода и управления. Аварийное 
отключение электродвигателя сопровождается подачей светового и 
звукового сигналов. Системы автоматики компрессоров отличаются 
в зависимости от модификации функциональными возможностями и 
элементной базой. Фундамент компрессорной установки 
разрабатывается применительно к конкретному месту 
расположения.
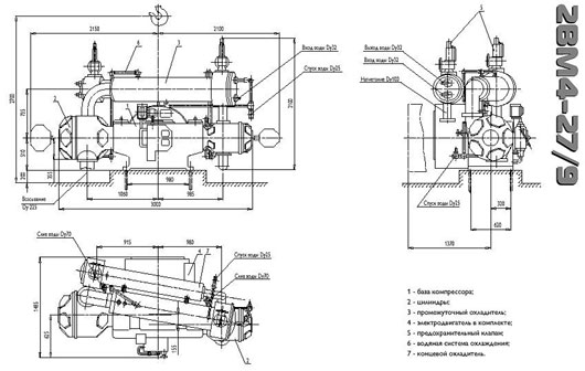
 Общий вид, габаритные и установочные размеры 
компрессорной установки 2ВМ4-27/9, 2ВМ-4-27/9 представлены на 
рис.
 
 Условия эксплуатации компрессора 2ВМ4-27/9, 2ВМ 
4-27/9
 высота над уровнем моря не более 1000 м;
 максимальная температура охлаждающей воды 25 .С;
 могут 
эксплуатироваться в любом климатическом районе;
 во 
взрывозащищенном исполнении работают со взрывоопасными 
средами.
 
 Монтаж и эксплуатация компрессорных установок 
осуществляются в соответствии с действующими "Правилами 
устройства и безопасной эксплуатации стационарных 
компрессорных установок, воздухопроводов и газопроводов", 
"Правилами устройства электроустановок", а также в 
соответствии с руководством по эксплуатации ВП 000-ВЭ 
завода-изготовителя.
 Компрессор 2ВМ4-27/9 соответствует 
требованиям ТУ 26-12-783-89
 
 Технические характеристики компрессора 2ВМ4-27/9, 2ВМ 4-27/9
 
 
 
  
  
    | Компрессор 2ВМ4-27/9, 2ВМ 4-27/9 |  |  
    | Сжимаемый газ | воздух |  
    | Частота вращения вала 
      электродвигателя, об/мин | 750-375 |  
    | Объемная производительность 
      приведенная к условиям всасывания, куб/м в мин. | 27-35,5 |  
    | Давление атм. абс.: | Начальное | атмосферное |  
    | Конечное | 9 |  
    | Температура газа начальная 
      град. С | -25:+35 |  
    | Мощность на валу компрессора, 
      кВт. | 144-72 |  
    | Расход охлаждающей воды без 
      концевого при ее температуре на входе +25 град. С. 
      (расч.) л./мин. | 130-70 |  
    | Расход масла на смазку 
      цилиндров, г/час | 96 |  
    | Количество масла, заливаемого в 
      раму компрессора, л | 100 |  
    | Масса компрессора, кг | 3920 |  
    | Электродвигатель |  |  
    | Тип | А2К85/24-8/16УХЛ4 |  
    | Мощность, кВт | 160/75 |  
    | Напряжение, В | 380 |  
    | Установка |  |  
    | Масса установки в объеме 
      поставки, кг | 5000 |  
    | Габаритные размеры установки, 
      Д/Ш/В, мм | 3000/1485/2100 |  Допустимое 
количество растительных и механических примесей в охлаждающей 
воде не должно превышать 40 мг/л, жесткость воды не более 7 
мг-экв/л, наличие ионов хлора не более 1-1,5 г/л.
 Не 
допускается наличие в воде ионов меди, едких кали и натра.
 Давление воды в системе охлаждения не должно превышать 
0,25 МПа.
 При производительности 100% поддерживается 
давление 0,1-0,12
 МПа; при производительности 50% - 
0,055-0,065 МПа.
 Периодичность замены масла - 3000 
ч.
 Поставляем запчасти ремонт компрессора 2ВМ4-27/9, 2ВМ 
4-27/9
 
 |  |