на главную карта сайта отправить эл.письмо
Адрес: 111033, Россия, г. Москва, ул. Волочаевская, д.40, стр.4
+7 (495) 363-97-51
                       
Каталог Продукции
МКЗ "Борец"

промышленное оборудование
Адрес: 111033, Россия, г. Москва
ул.Волочаевская
д.40, стр.4
Тел/Факс: +7 (495) 363-97-51
Email: info@energoprom.info

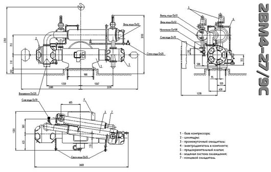
Компрессор 2ВМ4-27/9C

Поршневые компрессорные установки

МКЗ "Борец"


Описание
Компрессор 2ВМ4-27/9С, 2ВМ 4-27/9С стационарный, поршневой, крейцкопфный, двухступенчатый оппозитный с водяным охлаждением без смазки цилиндров и сальников.
В компрессорах без смазки цилиндров система смазки высокого давления с подачей масла в цилиндры и к уплотнительным устройствам не предусмотрена, в них применены кольца из самосмазывающихся композиционных материалов. Лубрикаторы отсутствуют. Поршни этих компрессоров имеют опорные разрезные кольца из самосмазывающихся материалов на основе фторопласта с различными наполнителями.

Для предотвращения попадания масла из рамы в полость сжатия, каждый цилиндр в компрессорах без смазки цилиндров снабжен фонарем, маслослизывающим уплотнительным устройством, маслоотбойником и маслослизывающими кольцами.

Привод осуществляется от двухскоростного асинхронного двигателя тип А2К 85/24-8/16УХЛ4, встроенного в раму компрессора.
Компрессор оборудован системой автоматической защиты и сигнализации по основным параметрам.

Компрессорная установка соответствует требованиям - ТУ 26-12-804-90.

Технические характеристики компрессора 2ВМ4-27/9С, 2ВМ 4-27/9С

Компрессор 2ВМ4-27/9С, 2ВМ 4-27/9С  
Сжимаемый газ воздух
Частота вращения вала электродвигателя, об/мин 750-375
Объемная производительность приведенная к условиям всасывания, куб/м в мин. 27-35,5
Давление атм. абс.: Начальное атмосферное
Конечное 9
Температура газа начальная град. С  -25:+35
Мощность на валу компрессора, кВт. 152-75
Расход охлаждающей воды без концевого при ее температуре на входе +25 град. С. (расч.) л./мин. 130-70
Расход масла на смазку цилиндров, г/час -
Количество масла, заливаемого в раму компрессора, л 100
Масса компрессора, кг 4100
Электродвигатель  
Тип А2К85/24-8/16УХЛ4
Мощность, кВт 160/75
Напряжение, В  380
Установка  
Масса установки в объеме поставки, кг 5200
Габаритные размеры установки, Д/Ш/В, мм 3500/1500/2050

винтовые компрессоры
Rambler's Top100 Яндекс.Метрика
 


Не дозвонились?

Оставьте Ваши контактные данные и мы перезвоним Вам в ближайшее время

Ваше имя:
Телефон:
Комментарий:

Закрыть

Отправить
ЗАКРЫТЬ